整合营销服务商

电脑端+手机端+微信端=数据同步管理

免费咨询热线:

dwg格式文件用什么软件打开?dwg文件打开的四种方式!

dwg格式文件用什么软件打开?有些小伙伴在接收到他人发送过来的dwg格式文件时,会有此疑问。dwg文件是电脑辅助设计软件保存设计数据所用的一种专有文件格式,通常需要用CAD软件才能打开查看。本节内容小编就来给大家分享几种dwg文件的打开方式,一起来看看吧!

dwg文件打开方式

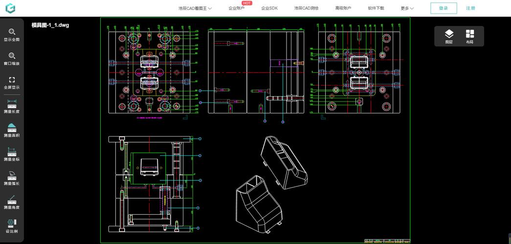
方式一:网页在线打开

优点:无需安装任何软件,在浏览器上就可轻松查看、分享dwg格式文件。

操作步骤:

1、在浏览器中搜索并打开【浩辰CAD看图王网页版】,点击【打开文件】,选择【公开/私有】,勾选【浩辰CAD看图王打开图纸使用协议】,点击【选择本地文件】。

js打开本地可执行文件_js打开本地文件夹_js 打开本地文件

dwg文件打开方式:网页在线打开

2、在电脑中找到需要打开的dwg文件后点击【打开】即可。

js打开本地文件夹_js打开本地可执行文件_js 打开本地文件

js 打开本地文件_js打开本地可执行文件_js打开本地文件夹

dwg文件打开方式:网页在线打开

下面再给大家分享三种需要下载软件的dwg文件打开方式。

方式二:用手机CAD看图软件打开

优点:在手机或PAD上查看、编辑、批注CAD图纸文件,随时随地共享设计创意。

操作步骤:

在手机中下载安装浩辰CAD看图王APP,然后点击接收到的dwg文件,【用其他应用打开】,在页面底部跳出的对话框中找到并点击【浩辰CAD看图王】。

js打开本地文件夹_js 打开本地文件_js打开本地可执行文件

dwg文件打开方式:手机CAD看图软件打开

方式三:用电脑CAD看图软件打开

优点:开图更快捷、显示更准确、操作更方便,还可以对打开的dwg文件进行一些简单的编辑操作。

操作步骤:

js打开本地可执行文件_js打开本地文件夹_js 打开本地文件

在电脑中下载并安装浩辰CAD看图王电脑版后,启动该软件,点击打开【打开文件】按钮,在打开的【选择文件】对话框中选择需要打开的dwg文件,点击【打开】即可。

js打开本地文件夹_js 打开本地文件_js打开本地可执行文件

dwg文件打开方式:电脑CAD看图软件打开

方式四:用CAD软件打开

优点:正常编辑打开的dwg文件。

操作步骤:

在电脑中下载安装浩辰CAD软件后,启动该软件,点击软件左上角的【打开】,在打开的【选择文件】对话框中选择需要打开的dwg文件,点击【打开】即可。

js打开本地文件夹_js 打开本地文件_js打开本地可执行文件

dwg文件打开方式:CAD软件打开

本文小编给大家分享了dwg文件的四种打开方式,有需要的小伙伴们来看看吧!